Ref # 2483114
R4,478,419
Property Details
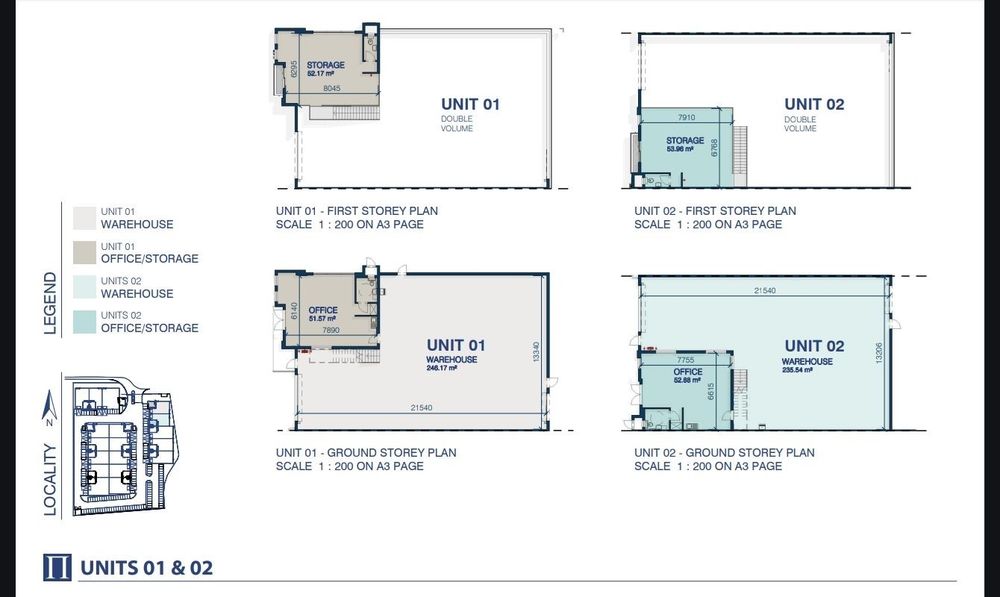
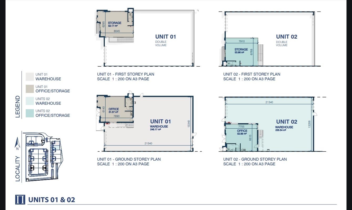
390m²

Office 52 m2.

Storage 54 m2

273 m2 Warehouse

- Newly build warehouse (occupation end 2026)

- Centrally located

- Close to R12

- Close to OR Tambo International airport

- Easy access to and from major arterials

- Easy access to freeways

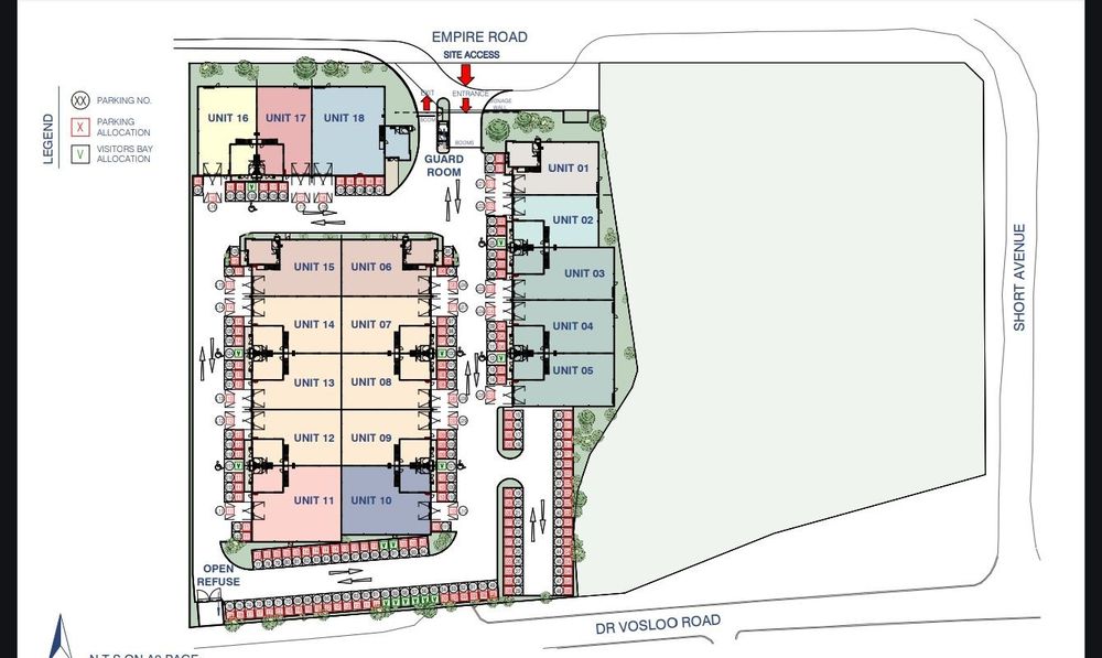
- Established industrial node

- Fibre cabling available

- Fibre Connectivity

- Good exposure

- Good height in warehouse

- Good security

- Large roller door access

- Offices and storeroom

- Prime industrial park

- Secure palisade fence around property

- Secure park

- exclusive use parking

Price excludes vat

All areas are approximate and subject to final survey

Options are available to combine units

Allocated parking

- - - Photos are general in the park and may not be representative of the actual unit

Osher specializes in Industrial and Commercial properties with an emphasis on the greater Johannesburg area. We collaborate with our network in all parts of South Africa to find solutions for our clients. Our services include all manner of property transactions including:

LEASING: more space or less;

SALES: investment or owner occupier;

DEVELOPMENTS: build to suit for ownership or rental;

TOWNSHIP ESTABLISHMENT: bringing new zoned land to market;

LEASEBACK: unlock capital from your property for your business;

FINANCE: structuring property deals;

AUCTIONS: efficient sales with commission paid by buyer.

Property Features
Property Type
Industrial
Floor Size
390m²
Costs and Terms
Available From
25 Mar 2026
Share this Property
Make an enquiry
Interested in this property? Please fill in your details below, and we will contact you as soon as possible.
By clicking on "submit" you agree to our privacy policy.